常用的三种直线运动导轨基本性能比较见表1。滚动直线导轨的运行速度已达300m/min。在欧美各国2/3以上的高速数控机床都采用了滚动直线导轨,已在各种现代机械设备中得到越来越广泛的应用。滚动功能部件皆以滚珠或滚柱为滚动体,常用的滚动功能部件有以下几种:
1、滚动直线导轨副
简图:
特点:滚动体与圆弧沟槽相接触,与点接触相比承载能力大,刚性好摩擦因数小,一般为0.002 ~0.005 ,仅为滑动导轨副的5%~2%,节省动力,可以承受上下左右四个方向的载荷。动、静摩擦差别很小。
磨损小,寿命长,安装、维修、润滑简便。允许运动速度为滑动导轨十倍以上,运动灵活、无冲击,在低速微量进给时,能很好地控制位置尺寸,不会发生空转打滑,并能实现超微米级精度的进给。
2、滚动直线导套副
简图:
特点:摩擦因数小,只有0.001~0.004,节省动力。微量移动灵活、准确,低速时无蠕动爬行。
精度高,行程长,移动速度快。具有自调整能力,可降低相配件加工精度。维修、润滑简便。
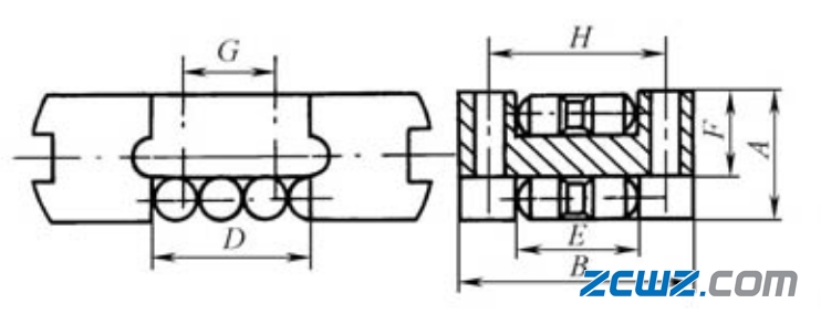
导轨与导套呈圆柱形,造价低,但滚动体与轴呈点接触,承载能力较小,适用于精度要求较高、载荷较轻的场合。
3、滚动花键副
简图:
特点:摩擦阻力极小,摩擦因数在0.002~0.003之间,可进行高速旋转或直线往复运动(速度可达100m/min以上)。摩擦阻力几乎与运动速度无关,在低速微动往复运动时,不会出现爬行现象。
可采用变换滚珠直径大小的办法施加预加载荷,消除正反转的间隙,以减少冲击和提高刚度及运动精度,承载能力高,寿命长,精度保持性好。
4、滚动导轨块
简图:
特点:滚动体为圆柱滚子,承载能力大约为球轴承的10倍以上摩擦因数小在0.005~0.01之间,且动静摩擦因数之差较小,对反复启动、停车、反向且频率较高机构可减少整机重量及动力消耗,无打滑。在重载或变载条件下可实现平稳运动。
灵敏度高,低速微调时控制准确,无爬行,滚动时导向性好,可提高机械随动性及定位精度。润滑系统简单,装拆、调整方便。不受床身长度限制,可根据承载大小选用多块导轨块广泛用于NC,CNC机床的平面直线运动机构中。

上渝精机



