四列圆柱滚子轴承作为轧钢机械使用的一种专用轴承,在经过几十年的发展历程,已经形成一套相对稳定的技术要求和设计准则。我国生产轧机轴承的生产厂家很多,由于各厂家对轧机轴承认识的不同和市场竞争力的需要,规范化形成惯例的技术规定随意超越,给用户的使用和维修造成很大的困难。
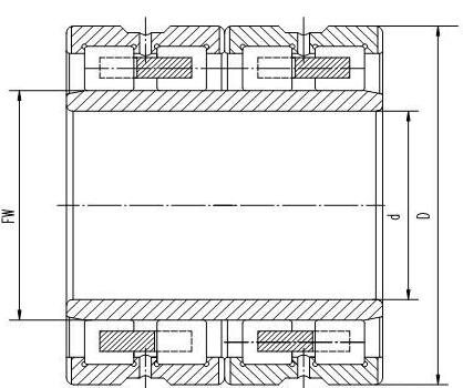
我国轧机用四列圆柱滚子轴承有两套现行行业标准,既JB/T5389.1-2005和JB4039-1985(现在已少有厂家使用)轧机用四列圆柱滚子轴承外形尺寸,在标准中规定了内滚道直径的公差为减公差,(见图一和查阅JB/T5389.1-2005);以内滚道尺寸公差为定值确定不同组别径向游隙,加工外滚道尺寸来确定滚子内复圆尺寸公差,FW值的公差系自由尺寸处理,没有公差要求,在实际生产中就比较混乱。这就给钢厂换辊工作造成了很大的困难。还有的厂家为了竞争的需要自行更改FW值,这些都给钢厂日常工作造成了很大的工作难度。见图一;
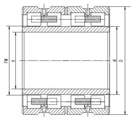
我国现行国家标准,四列圆柱滚子轴承的内滚道尺寸为轧机轴承的互换标准尺寸,也就是说轧机用四列圆柱滚子轴承是基轴制。轧机在工作时为了保证轧材精度,需要经常换辊修磨,这就要求所用四列圆柱滚子轴承必须内圈可以分离且具有互换性,因此,滚子组复圆内径应与轴承外形尺寸联系在一起,成为轴承基本尺寸,既轧机用四列圆柱滚子轴承应以基孔制设计为主导。目前,在我国还没有专门的标准对外圈滚子复圆内径FW值的公差做出明确规定。尽管到现在为止,没有专门的国际标准对四列圆柱滚子轴承的FW值的公差作统一规定,但国际上著名轴承公司所生产轧机轴承都是以FW的取值作为四列圆柱滚子轴承互换的第一要素确定径向游隙在确定内滚道加工公差,即基孔制设计。见图二和表△FW公差;
滚子复圆内径FW值的公差是作为互换用的配合尺寸,以基孔制形式出现,而且还有正公差要求,FW值公差应作为轧机用四列圆柱滚子轴承设计的第一要素,必须严格遵守,不可随意超越和更改,△FW的公差可参考下表选用;
基孔制与基轴制定义:
基孔制:采用基孔制的方法,由外圈滚道和滚子组合后的滚子运动轨迹形成的轴承内径即内复圆FW为定值;通过加工选用不同尺寸的内圈外径(di)值产生的不同组别的轴承出厂径向游隙的方法;
基轴制:以轴承内圈外径di为定值;通过加工选用不同尺寸的外滚道和滚子直径尺寸产生组别的轴承出厂径向游隙的方法;

上渝精机


