轴承是当代机械设备中一种重要零部件。轴承种类繁多,其中较为常见的一种为滚动轴承。
滚动轴承是将运转的轴与轴座之间的滑动摩擦变为滚动摩擦,从而减少摩擦损失的一种精密的机械元件。
它的结构是这样子的
▌ 内圈:与轴相配合并与轴一起旋转;
▌ 外圈:与轴承座相配合,起支撑作用;
▌ 滚动体:借助于保持架均匀的将滚动体分布在内圈和外圈之间,其形状大小和数量直接影响着滚动轴承的使用性能和寿命;
▌ 保持架:使滚动体均匀分布,引导滚动体旋转起润滑作用。
那么机械制图是怎么绘出这些形态各异的滚动轴承的呢?快拿出小本本来记一记吧~
滚动轴承按承受载荷的方向可分为三类:
(1)向心轴承 主要承受径向载荷,如深沟球轴承。
(2)推力轴承 仅能承受轴向载荷,如推力球轴承。
(3)向心推力轴承 能同时承受径向载荷和轴向载荷,如圆锥滚子轴承。
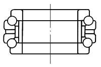
滚动轴承应按GB/T 4459.7—1998中的规定绘制,即在装配图中,当不需要确切地表示滚动轴承的形状和结构时,可采用简化画法和规定画法来绘制。
简化画法又可采用通用画法或特征画法来表示。
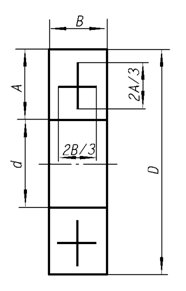
滚动轴承的通用画法
三类滚动轴承的规定画法
滚动轴承的特征画法及规定画法 | |||
特 征 画 法 | 规 定 画 法 | ||
在剖视图中,如需较形象地表示滚动轴承的结构特征时,可采用表中所示在矩形线框内画出其结构特征要素符号的方法表示 表滚动轴承的通用画法中图4~图7的规定也适用于特征画法。特征画法应绘在轴的两侧 | 必要时,在滚动轴承的产品图样、产品样本、用户手册和使用说明书中可采用表中的规定画法绘制。规定画法一般绘制在轴的一侧,另一侧按通用画法绘制 | ||
球 轴 承 | 滚 子 轴 承 | ||
GB/T 276 | GB/T 283 | ||
GB/T 285 | |||
GB/T 281 | GB/T 288 | ||
GB/T 292 | GB/T 297 | ||
GB/T 294 (三点接触) | |||
GB/T 294 (四点接触) | |||
GB/T 296 | |||
GB/T 299 | |||
GB/T 5801 JB/T 3588 GB/T 290 JB/T 7918 | |||
GB/T 5801 GB/T 5801 JB/T 7918 | |||
GB/T 6445.1 | |||
JB 3123 | |||
JB 3123 | |||
JB 3122 | |||
GB/T 16643 | |||
球 轴 承 | 滚 子 轴 承 | ||
GB/T 301 | |||
GB/T 301 | |||
JB/T 6362 | |||
GB/T 301 | |||
GB/T 301 | |||
GB/T 5859 | |||
滚动 轴承 轴线 垂直 于投 影面 的特 征画 | 在垂直于滚动轴承轴线上的投影面的视图上,无论滚动体的形状(球、柱、针等)及尺寸如何,均可按本图的方法绘制 | ||

上渝精机

























































